Poptávám výstavbu rodinného domu 3+1
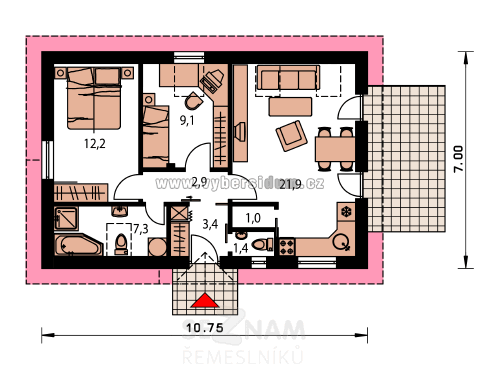
| Text poptávky: | Poptáváme řemeslníka či firmu na výstavbu přízemního RD z ytongu o dispozice 3+1, včetně základové desky, bez podsklepení, dále bez sanitární keramiky, obkladů a dlažeb. Střechu chceme jednoduchou, nejspíše ze šindele. Lokalita: Jenštejn - Praha východ. Termín provedení: Koncem roku 2010. Materiál: YTONG Množství, počet, rozměry: zastavěná plocha 75,2 m2 obestavěný prostor 280,8 m3 celková užitková plocha 59,2 m2 užitková plocha přízemí 59,2 m2 výška hřebene střechy 4 m sklon střechy 25° |
|---|---|
| Řemeslnický obor: | Zednické práce, domy na klíč |
| Další obory: | Rekonstrukce domů, bytů, bytových jade |
| Kraj | Středočeský |
| Předpokládaná cena: | 1 100 000 Kč |
| Datum vložení: | 28.06.2010 |
| Platnost do: | 29.08.2010 |
| Poloha: |
Přiložené fotografie a soubory:
744-1-bungalow._14..gif744-1-bungalow._14..gif744-1-bungalow._14..gif
Kontaktní údaje
Pro zobrazení kontaktních údajů poptávajícího musíte být přihlášeni jako řemeslník či se zaregistrovat.
